Подъемник двухстоечный 4т ATH Comfort Lift 2.40
Наши квалифицированные специалисты обязательно Вам помогут.
Описание
Электрогидравлический автомобильный подъемник ATH Comfort lift 2.40 надежного немецкого качества - грузоподьемностью до 4т с нижней синхронизацией.
ATH Comfort lift 2.40 - это надежное и профессиональное оборудование, предназначенное для поднятия и обслуживания автомобилей различных типов. Этот подъемник сочетает в себе высокую грузоподъемность и удобство использования, что делает его отличным выбором для автосервисов и мастерских. Нижняя синхронизация гарантирует равномерное поднятие и опускание автомобиля, обеспечивая безопасность и устойчивость во время работ.
Особенности АТН Comfort lift 2.40:
- Две панели управления на обеих колоннах обеспечивают удобство при работе и позволяют оператору контролировать подъемник с разных точек.
- "Energy-Set" на главной колонне (230В / 12В / сжатый воздух), для подключения инструментов, что улучшает эффективность обслуживания автомобилей и делает рабочий процесс более продуктивным.
- Быстрый подъём и опускание благодаря мощному гидроагрегату, что сокращает время работы и увеличивает производительность.
- Очень маленькая высота проездной планки (всего 20 мм), обеспечивает удобство при работе в мастерских и позволяет поднимать автомобили с низким клиренсом.
- Многофункциональный рабочий диапазон благодаря трехсекционным телескопическим лапам, асимметричные (короткие–длинные) или симметричные (длинные–длинные) - опция, что позволяет поднимать различные типы автомобилей и легко подстраивать под нужные параметры.
- Двойные телескопические подхваты (90 - 180 мм) с защитой от проворачивания обеспечивают надежность и безопасность при поднятии автомобилей.
- Автоматическая разблокировка подъёмных лап упрощает процесс работы и предотвращает несчастные случаи.
- Порошковое покрытие цвета антрацит - дополнительная защита от коррозии, обеспечивая долгий срок службы подъемника.
- Электромагнитная разблокировка защитных защёлок увеличивает безопасность эксплуатации и предотвращает несанкционированный доступ к подъемнику.
- Защитная лента для защиты цилиндров, цепей и тросов обеспечивает надежность и долговечность оборудования, снижая риск повреждений.
- Короткие или длинные подъёмные рычаги могут поставляться как принадлежность, что дает возможность выбирать подходящие инструменты для комфортной работы с разными автомобилями.
- Концепция FREE-LINE подъёмников 3.0т / 3.5т / 4т: Возможна модификация с опциональными принадлежностями для расширения функциональности и адаптации к конкретным задачам.
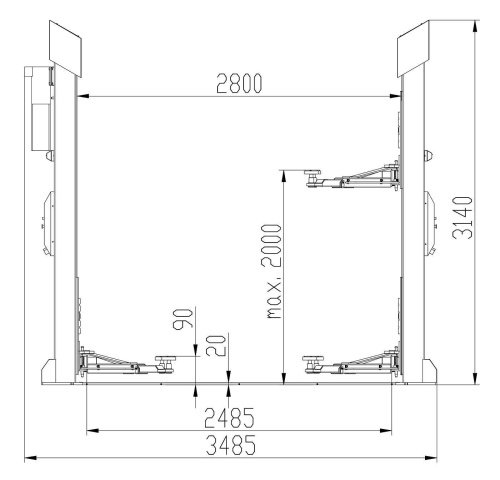
Спецификация
|
Синхронизация
|
Нижняя |
|
Грузоподъемность, кг
|
4000 |
|
Высота подъема, мм
|
2000 |
|
Время подъема/спуска, сек
|
30 |
|
Напряжение питания, В
|
380 |
|
Мощность двигателя, кВт
|
3.0 |
|
Расстояние между стойками, мм
|
2500 |
|
Длина передних рычагов, мм
|
595 |
|
Длина задних рычагов, мм
|
900 |
|
Тип подъемника
|
Электрогидравлический |
|
Общая высота изделия, мм
|
3140 |
|
Общая ширина изделия, мм
|
3542 |
|
Гарантия, мес
|
36 |













